"Transforming Spaces for Busy London Professionals" "We design stylish, functional interiors that reflect your personality and fit your life style."
DENTAL PRACTICE SURREY
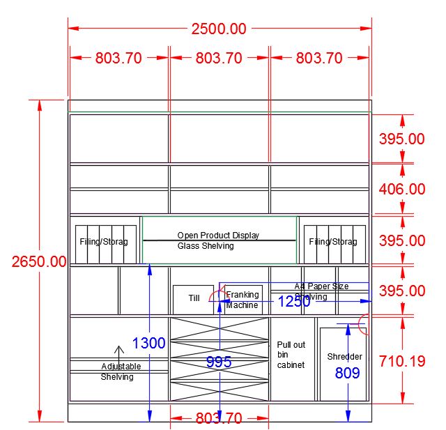
Hide your items in storage: I start by looking at what the client need to have in the reception area and how much storage they require, and then started measuring the items (printer, folders, ….) and what items need to be displayed. The next step is to start designing the unit in detail to pass to the joiner to make. I always add bespoke lighting (LED strips) to highlight the areas that need to be seen more, for example in this case the display area!
Give your existing wall character. It consists of adding wood frames to your already existing walls, this can be done by either with glue or nails and then painting the entire wall to match. You can customise not only the size of the boxes, to be squares rectangles or combination, but also the thickness of the boards that you add to the wall to achieve just about any look. I measured the walls and designed it in AutoCAD to make sure it is proportionate to the size of the wall.